Prodej rodinného domu Boněcko- Zlín
Boněcko II,
Zlín,
Prodej
6 490 000 Kč
+ Hlídat
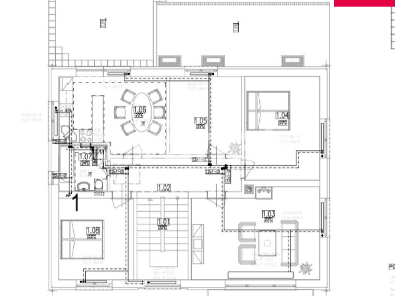
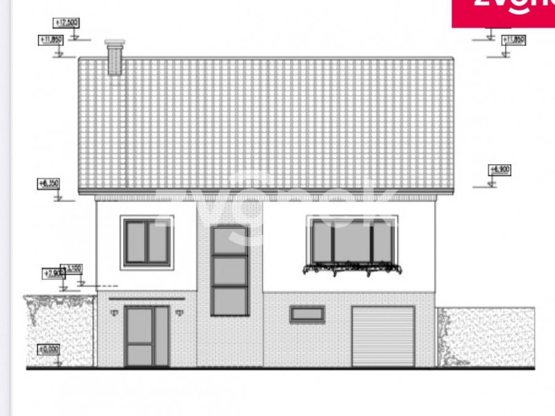
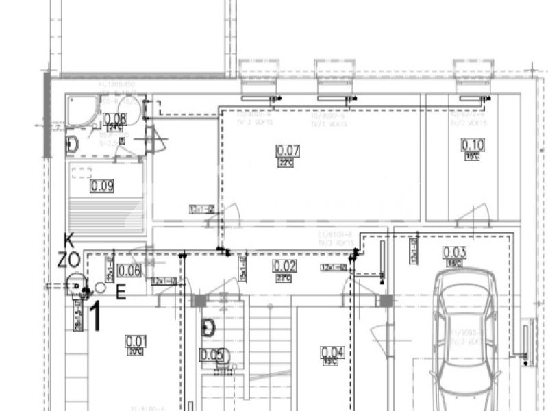
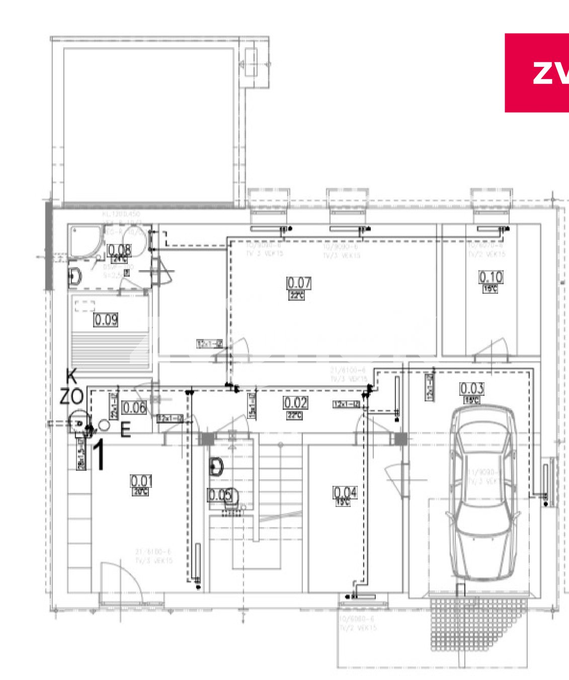
Nabízíme v exkluzivním zastoupením klienta dvoupodlažní dům ve stavu hrubé stavby s kompletním stavebním projektem k dokončení. Objekt se nachází v jedné z VIP adres města Zlína na pozemku 418m2. Hrubá stavba je postavena kvalitně z nejlepších materiálů na trhu určených k výstavbě domů. Zastavěná plocha 130m2 a užitná plocha je 97m2 přízemí + 105 m2 1.NP. Další potenciál je v možnosti půdní vestavby. Je to jedinečná možnost bydlení pro rodinu v atraktivní oblasti prestižní čtvrti. Těšíme se na prohlídku s vážnými zájemci o tuto skvělou nabídku.
Parametry
- ID nabídky
- ZL04313
- Cena
- 6 490 000 Kč (včetně provize) za nemovitost
- Poznámka k ceně
- včetně provize, včetně DPH, další pozn.:Včetně provize
- Stav zakázky
- aktivní nabídka
- Typ nemovitosti
- domy a vily
- Typ nabídky
- prodej
- Poloha objektu
- samostatný
- Příjezdová komunikace
- asfaltová komunikace
- Typ domu
- patrový
- Druh objektu
- cihlový
- Počet podlaží v domě
- 2
- Dispoziční řešení domu
- dvougenerační
- Umístění objektu
- klidná část obce
- Zastavěná plocha
- 130m²
- Užitná plocha
- 202m²
Vlastimil Žáček
realitní makléř
- Telefon: +420603246680
- E-mail: zacek@zvonek.cz
Odpovědní formulář
Máte zájem o tuto nemovitost? Napište nám a náš makléř se vám co nejdříve ozve.
603 246 680