Pronájem bytu 3+kk na Zahrádkách s dvěma velkými terasami.
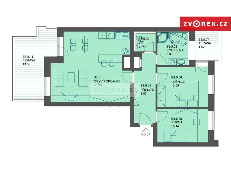
Nabízíme exkluzivně k pronájmu byt 3+kk v novostavbě bytového domu ve Štěpnicích ul. Zahrádky vedle nemocnice. Byt se nachází v 5NP bezbariérového nově postaveného bytového domu s výtahem. Dispozice bytu: zádveří, chodba s /prostornou vestavěnou skříní, botník, věšák na šaty/, z chodby je vchod do pracovny – dětského pokoje, ložnice s velkou vestavěnou skříní/, koupelna se sprchovým koutem, osvětleným zrcadlem a toaletními skříňkami, samostatné WC s umývadlem, obývací pokoj s jídelnou a kuchyní. Kuchyň je vybavena /sklokeramickou deskou, digestoří, horkovzdušnou troubou, lednicí s mrazákem, myčkou na nádobí, mikrovlnnou troubou. Z obývacího pokoje je vstup na prostornou terasu. Ve všech oknech jsou instalovány žaluzie. K bytu náleží sklep. Bytový dům je velmi energeticky úsporný / kategorie B/. K bytu je MOŽNO PRONAJMOUT GARÁŽ v suterénu domu. V blízkosti domu se nachází škola, školka, dětské hřiště, lesopark, obchod, autobusové zastávky, lékárna, nemocnice, cyklostezka. Centrum města je vzdáleno 8 min. pohodlnou chůzí. Celková měsíční platba ve výši 22.000,- Kč je složena 17.500,- Kč nájem a 4.500,- Kč zálohy na energie - inkaso. Byt bude volný od 1.3.2026.
Videoprohlídka
Parametry
- ID nabídky
- 677186
- Cena
- 17 500 Kč za měsíc
- Poznámka k ceně
- včetně právního servisu, další pozn.:V ceně nájmu nejsou zahrnuty zálohy na energie- inkaso.
- Stav zakázky
- aktivní nabídka
- Typ nemovitosti
- byty
- Typ nabídky
- pronájem
- Dispozice
- 3+kk
- Druh objektu
- cihlový
- Podlaží
- 5
- Počet podlaží v domě
- 5
- Bytové jádro
- zděné
- Druh bytu
- v bytovém domě (družstevním)
- Celková podlahová plocha
- 88m²
- Umístění objektu
- sídliště
- Užitná plocha
- 70m²
Jiří Tomaňa
- Telefon: +420603246680
- E-mail: tomana@zvonek.cz
Odpovědní formulář
Máte zájem o tuto nemovitost? Napište nám a náš makléř se vám co nejdříve ozve.
603 246 680